中性点经消弧线圈接地电网单相接地故障与接地选线和消弧装置


  上节开始提到接地较大时,必须采用消弧线圈接地方式,有了消弧线圈,再出现接地故障,线圈会对电流进行补偿,使其迅速灭弧。电网中普遍采用过补偿方式,过补偿度为5%-10%。

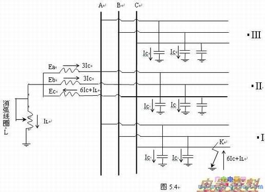
  该接地系统故障时的电气量分析如图5.4

5  

  注意到在过补偿情况下故障点电流(6+IL)近似纯性质,这一点是图5.4与图5.1的不同点

  同样,分析图5.4可以得到以下结论:

  1、在经消弧线圈接地电网中发生单相接地故障时,故障相对地为零,非故障相对地电压为电网的,电网出现零序电压,大小为电网正常时的,但电网三相仍然是三相对称的。

  2、消弧线圈两端电压为零序电压,消弧线圈电流IL通过故障点与故障相,不经过非故障线路。

  3、接地故障处残余电流6Ic+IL等于补偿度与电网电容电流总和的乘积,滞后零序电压90°,残余电流数值较小。

  4、非故障线路3I0大小等于本线路接地电容电流,方向是电流从母线流向线路。在过补偿的情况下,故障线路3I0大小为残余电流与本线接地电容电流之和,呈纯性质,方向是从大地流向母线。

  5、非故障线路零序电流超前零序电压90°,在过补偿情况下,故障线路零序电流也超前零序电压90°,两者一致(这是两种小电流接地的不同点,要特别注意。)。

  比较小接地电流系统的这两种接地方式的故障情况可以发现由于采用了过补偿方式,使得经消弧线圈接地电网故障点残余电流较小,因此故障线路与非故障线路零序电流相差无几; 同时两者功率方向一致,所以不能采用上一节比较工频零序电流大小与工频零功方向的方法选线。

  以上的分析都是都是采用故障时电流的基波分量,在实际故障中,还同时产生大量的高次暂态谐波,故障线路谐波远比非故障线路大。同时消弧线圈的电感性对越高的谐波,越呈开路状态,对地电容的电容性对频率越高的谐波越呈短路状态。这样装置提取5次谐波作为分析对象的话,系统特性就与不接地系统完全一致了。

  

  电感线圈的:ZL=2nπ*f0*L

  电容的:Zc=

  n:谐波次数    f0:基波频率    L:电感常数    C:电容常数

  在正常运行时,电感消弧线圈是可调的,装置根据当前对地电容电流大小适时的调节线圈的档围,使其始终保持在合适的过补偿状态之下。