宜宾局35KV及以下电网均采用中性点不直接接点运行方式,该类电网如果发生单相接地,接地点仅仅通过线路的对地,如果35KV电网电流不超过10A,10KV电网不超过30A,就采用不接地方式,如果超过这个值,就必须采用经消弧线圈接地方式。这两种方式统称小电流接地方式。
该类电网发生单相故障时,仍然是三相对称,并不影响用户用电,且故障电流较小,可以允许电网继续运行1~2小时。但是单相故障若不及时排除,容易转换为多相故障。原始的方式是采用手工逐条线路拉闸的方式查找故障线路,现在采用接地选线装置可以自动判断出故障线路。
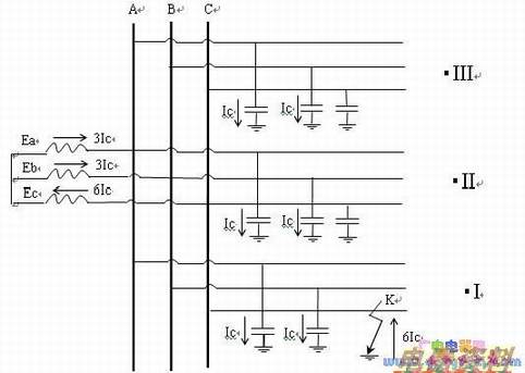
一、中性点不接地电网故障分析

在I号线路A相发生金属接地故障时,II、III号线路A相与地是等电位,无电容电流,三条线路的B、C两相对地都有电容电流,由母线流向线路到大地,在故障点有故障电流6Ic由大地流入线路到母线。
省略掉复杂的计算公式,可以只观的从图5.1得到以下结论:
1、不接地系统发生单相故障,故障相对地为零,非故障相对地电压为电网的线电压,电网出现零序电压,大小等于电网正常时的,但电网的线电压仍是三相对称的。
2、非故障线路的3I0大小为该线路的对地电容电流之和,故障线路的3I0大小为所有非故障线路的对地电容电流之和
在图5.1中,非故障的II、III号线路3I0=2Ic,方向为流出母线, I号故障线路
3I0=6Ic-2 Ic=4Ic,方向为线路流向母线。
3、结合结论2且因为零序电流是电容电流,所以非故障线路的零序电流超前零序电压为90°,故障线路的零序电流滞后零序电压为90°,两者相差180°。矢量图如图5.2
4、故障时接地点K的电流等于所有线路(包括故障线路)的接地电容电流的总和,它超前零序电压为90°。
在图5.1中,Ik=6Ic,这里的Ik应看做所有线路B、C两相电容电流之和,所以方向应与其一致。

参考设计手册,线路电容电流可以有以下计算公式
架空线路:Ic= 电缆线路:Ic=
Ic:对地电容电流
U:电网线电压(KV)
L:线路长度(Km)
二、绝缘监察与接地选线装置
利用上面结论中的电气特征,设计出该装置。
由结论1,线路单相接地时,母线PT开口三角形上有输出电压,装置报警有线路接地,但此时还不知道具体的接地线路。要找出故障线路,结合结论2,采用考察零序电流大小的方式,结合结论3,采用考察零序功率方向的方式来查出故障线路。
一般都在出线电缆头处安装一穿心式零序CT来采集零序电流,在考察零序电流大小的方式中,装置选取零序电流最大的线路为故障线路。该方法在线路越多时,故障线路零序电流越大于非故障线路的零序电流,就越灵敏,越可靠。在考察零序功率功率方向的方式中,由结论3很容易理解故障线路零序功率方向与非故障线路的零序功率方向是相反的。
有的厂家生产的该装置是结合了以上两种方式来选线。先选出零序电流最大的三条线路,再判别功率方向。这种方法避免了因为线路长短不一,电容电流差别较大,有可能某条非故障线路零序电流与故障线路零序电流很接近的情况下装置选线错误。
三、消谐装置
在以上分析是以假设单相故障是金属性接地故障为前提的,实际中的故障往往是闪络性质的弧光接地,弧光的温度可以达到上千度,不容易熄灭,产生危害很大,造成线路绝缘降低转换成多相故障,扩大电网事故;弧光上的高电压也容易引起电气设备产生高压谐振,同时弧光的闪络产生大量杂波也不利于选线装置工作等等,所以有些电网还采用了消谐装置来消除这个危害。消谐装置的工作原理如图5.3

当某条线路A相故障时,微机消谐装置根据输入的零序电压启动,再对输入的三相电压进行计算,当判断为弧光接地时,迅速将分相操作的一次接地开关DLA合上,从而达到迅速灭弧的目的。