百科
→
装修知识
→
家装设计
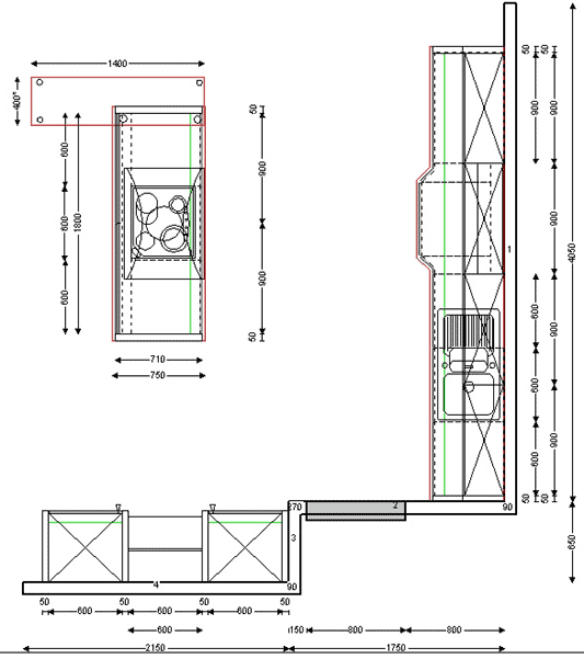
厨房设计案例(10):岛型橱柜设计 烹饪休闲在岛区
◆设计师介绍:
别墅厨房最适合岛形橱柜设计布置,为了让主妇的手艺可以有机会“炫”一下,就把烹饪区放在岛区,旁边的休闲吧台,可以随时满足那些馋嘴们的眼福。
◆业主点评:
有个爱烹饪、并且手艺好的全职太太,真是全家人的福气;朋友们也常来借机蹭饭呢!最喜欢眼看着美食做出来的全过程。
厨房设计案例:岛型橱柜设计 烹饪休闲在岛区
厨房设计案例:岛型橱柜设计 烹饪休闲在岛区
相关文章:
·
厨房设计案例(9):岛型橱柜设计 随意休闲在...
·
厨房设计案例(8):个性的I型橱柜设计
·
厨房设计案例(7):简单但功能齐全的I型橱柜...
·
厨房设计案例(6):U型橱柜设计
·
厨房设计案例(5):开放式厨房U型橱柜设计
·
厨房设计案例(4):开放式厨房U型橱柜设计
·
厨房设计案例(3):L型橱柜设计
·
厨房设计案例(2):利用拐角空间的L型橱柜设...
·
厨房设计案例(1):L型橱柜设计
·
安全第一 儿童房的装修设计应注意三点
·
厨房设计案例(11):岛型橱柜设计 清洗用餐在...
·
厨房设计案例(12):不规则橱柜设计
·
厨房设计案例(13):异型橱柜设计
·
厨房设计案例(14):狭长型橱柜设计
·
不同风格的卧室装修设计 让家与众不同(图)
·
厨房设计案例(16):便宜实用的I型橱柜设计
·
厨房设计案例(15):简单实用的I型橱柜设计
·
厨房设计案例(17):经济实用的开放式橱柜设...
·
厨房设计案例(18):中档的L型橱柜设计
·
厨房设计案例(19):中档的U型橱柜设计
·
小空间大作用,巧妙设计让飘窗“飘
·
书房装修设计——雅、序、明、静
·
取舍有“道” 家庭装修吊顶别入误
·
电视背景墙的装修设计及流行做法
·
小户型房屋装修布置与设计原则