百科
→
装修知识
→
家装设计
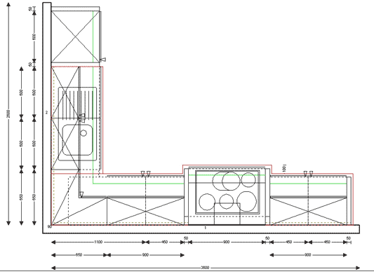
厨房设计案例(3):L型橱柜设计
◆设计师介绍:
这间厨房的面积是9平方米左右,夫妻二人都是上班族,因此厨房设计一定要实用、方便;洗涤区右侧是冰箱与烤箱,洗涤区左侧有宽敞的空间,可以摆放清洗后及切配好的蔬菜,而且烹饪时取用也很顺手和方便;门板选用的也较为实惠。
◆业主点评:
三口之家,日常饮食主要是由夫妻二人轮流来料理,要求厨房各区域布置合理,操作顺手,预算最好不要太高。
厨房设计案例:L型橱柜设计
厨房设计案例:L型橱柜设计
相关文章:
·
厨房设计案例(2):利用拐角空间的L型橱柜设...
·
厨房设计案例(1):L型橱柜设计
·
安全第一 儿童房的装修设计应注意三点
·
经济实用的简约厨房设计特色
·
儿童房的装修设计要诀(图)
·
家庭装修的设计原则
·
家居装修用色彩改变心情 红黄色调增强家居活...
·
5款现代的儿童房设计(图)
·
家庭装修的几种设计方法
·
巧用家具增加室内空间
·
厨房设计案例(4):开放式厨房U型橱柜设计
·
厨房设计案例(5):开放式厨房U型橱柜设计
·
厨房设计案例(6):U型橱柜设计
·
厨房设计案例(7):简单但功能齐全的I型橱柜...
·
厨房设计案例(8):个性的I型橱柜设计
·
厨房设计案例(9):岛型橱柜设计 随意休闲在...
·
厨房设计案例(10):岛型橱柜设计 烹饪休闲在...
·
厨房设计案例(11):岛型橱柜设计 清洗用餐在...
·
厨房设计案例(12):不规则橱柜设计
·
厨房设计案例(13):异型橱柜设计
·
小空间大作用,巧妙设计让飘窗“飘
·
书房装修设计——雅、序、明、静
·
取舍有“道” 家庭装修吊顶别入误
·
电视背景墙的装修设计及流行做法
·
小户型房屋装修布置与设计原则